Production Designers: Steve Groves, John Asbridge & Linda Conoboy
Front Lot - Joinery Drawing Set

The main feature of Union Street on the Back Lot was the original Victorian corner shop, designed to echo a range of existing structures found across the East End of London while remaining deliberately understated and anonymous. This allowed it to blend seamlessly into the wider streetscape and support a variety of story needs.

Front Lot - Walford Bus Garage Backdrop D

The main feature of Union Street on the Back Lot was the original Victorian corner shop, designed to echo a range of existing structures found across the East End of London while remaining deliberately understated and anonymous. This allowed it to blend seamlessly into the wider streetscape and support a variety of story needs.

Front Lot - Queen Victoria Public House Bar

The main feature of Union Street on the Back Lot was the original Victorian corner shop, designed to echo a range of existing structures found across the East End of London while remaining deliberately understated and anonymous. This allowed it to blend seamlessly into the wider streetscape and support a variety of story needs.

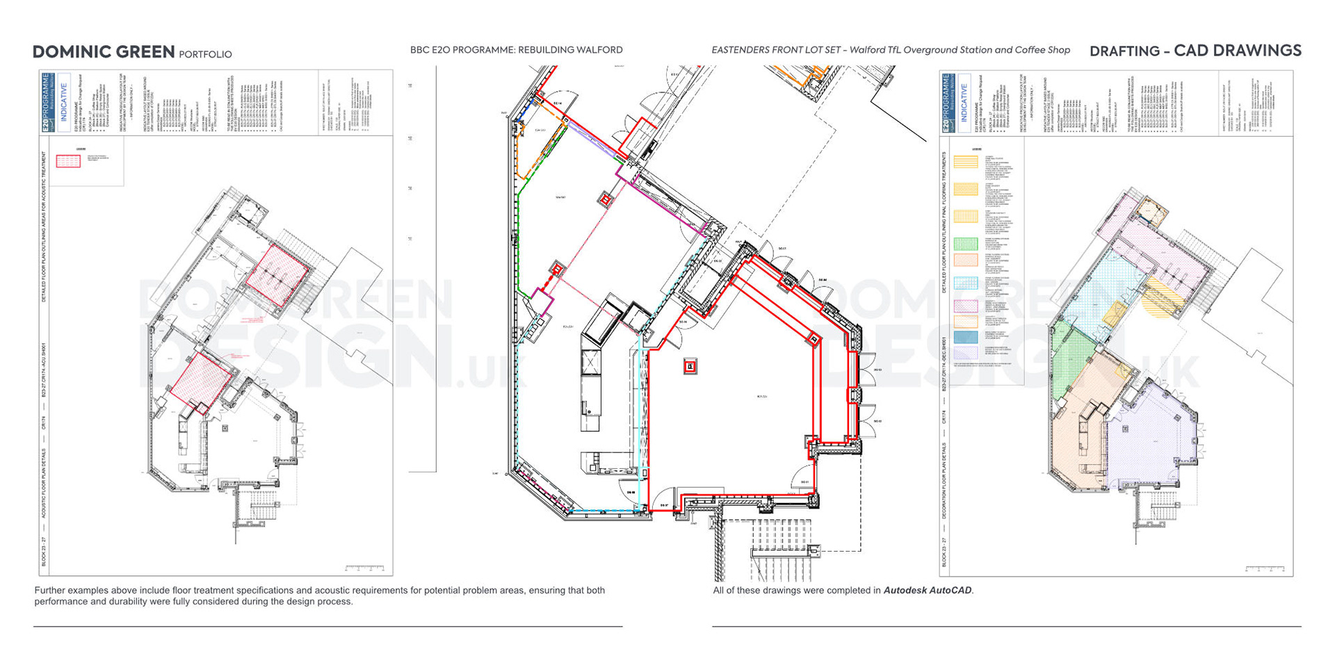
Front Lot - Walford TfL Overground Station and Coffee Shop

The main feature of Union Street on the Back Lot was the original Victorian corner shop, designed to echo a range of existing structures found across the East End of London while remaining deliberately understated and anonymous. This allowed it to blend seamlessly into the wider streetscape and support a variety of story needs.

The main feature of Union Street on the Back Lot was the original Victorian corner shop, designed to echo a range of existing structures found across the East End of London while remaining deliberately understated and anonymous. This allowed it to blend seamlessly into the wider streetscape and support a variety of story needs.

The main feature of Union Street on the Back Lot was the original Victorian corner shop, designed to echo a range of existing structures found across the East End of London while remaining deliberately understated and anonymous. This allowed it to blend seamlessly into the wider streetscape and support a variety of story needs.

The main feature of Union Street on the Back Lot was the original Victorian corner shop, designed to echo a range of existing structures found across the East End of London while remaining deliberately understated and anonymous. This allowed it to blend seamlessly into the wider streetscape and support a variety of story needs.

The main feature of Union Street on the Back Lot was the original Victorian corner shop, designed to echo a range of existing structures found across the East End of London while remaining deliberately understated and anonymous. This allowed it to blend seamlessly into the wider streetscape and support a variety of story needs.

Front Lot - Lobby and Basement Lobby Studio Plans

The main feature of Union Street on the Back Lot was the original Victorian corner shop, designed to echo a range of existing structures found across the East End of London while remaining deliberately understated and anonymous. This allowed it to blend seamlessly into the wider streetscape and support a variety of story needs.

You may also like...

Back to Top